#20
#18
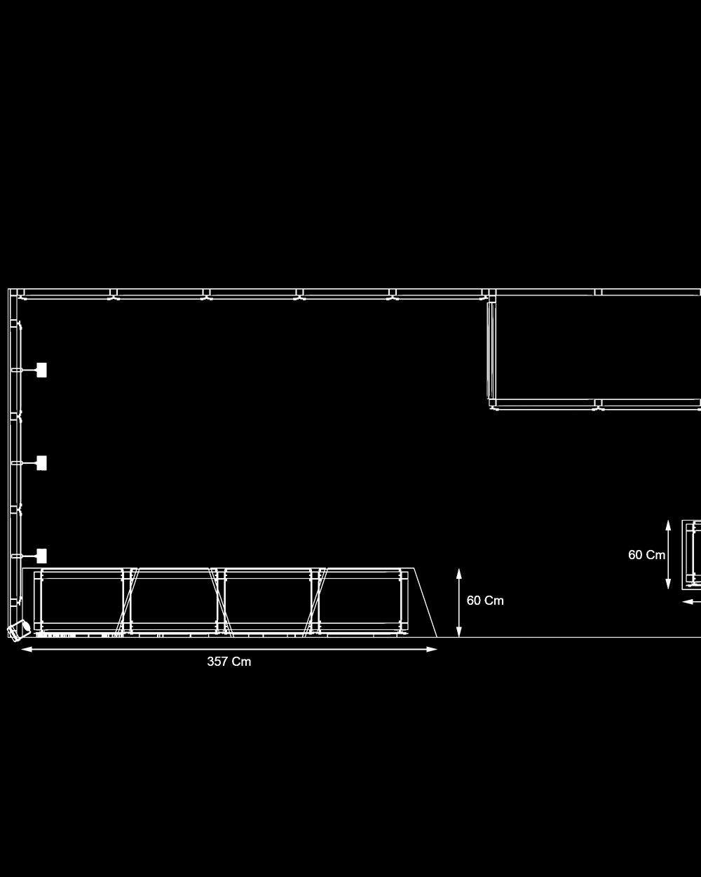
Project # 19
SAZE90 FAIRS PAVILION DESIGN